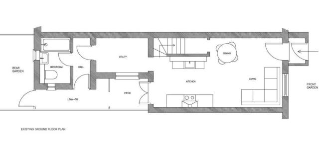
4 Property Deals in TW12 2AD
Auction
3 Bed House, Single Let, Hampton, TW12 2AD
£525,000
1 views • a month ago • 64 m²
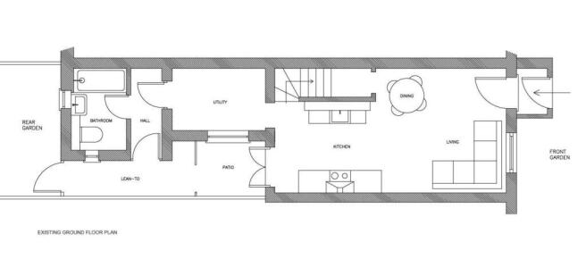
Auction
3 Bed House, Single Let, Hampton, TW12 2AD
£525,000
12 days ago • 64 m²
2 Bed House, Planning Permission, Hampton, TW12 2AD
£599,950
2 views • 3 months ago • 68 m²
Sold STC
2 Bed House, Single Let, Hampton, TW12 2AD
£600,000
1 views • 4 months ago • 68 m²







































