6 Planning Deals in TS27
Sold STC
4 Bed House, Refurb/BRRR, Hartlepool, TS27 4RH
£130,000
2 months ago • 129 m²
Sold STC
4 Bed House, Refurb/BRRR, Hartlepool, TS27 4RH
£130,000
3 months ago • 129 m²
Auction
2 Bed Bungalow, Planning Permission, Hartlepool, TS27 4LS
£48,000
1 views • 4 months ago • 68 m²
3 Bed House, Planning Permission, Hartlepool, TS27 3AJ
£395,000
4 months ago • 93 m²
Sold STC
4 Bed House, Refurb/BRRR, Hartlepool, TS27 3EG
£265,000
1 views • 6 months ago • 129 m²
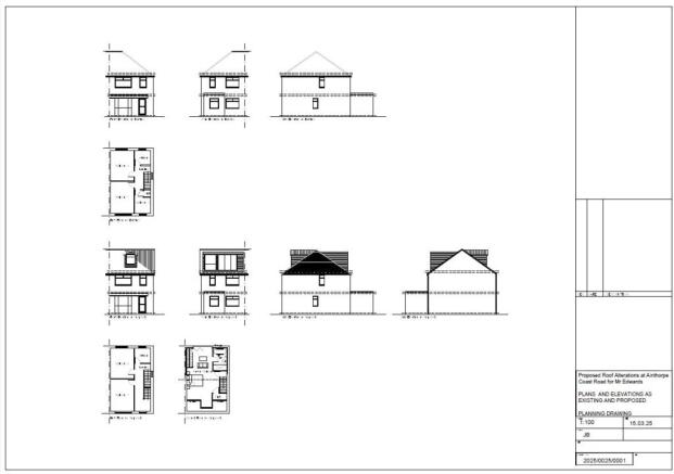
5 Bed House, Planning Permission, Hartlepool, TS27 4RB
£1,200,000
9 months ago • 178 m²


























































































































































