8 Planning Deals in GL18
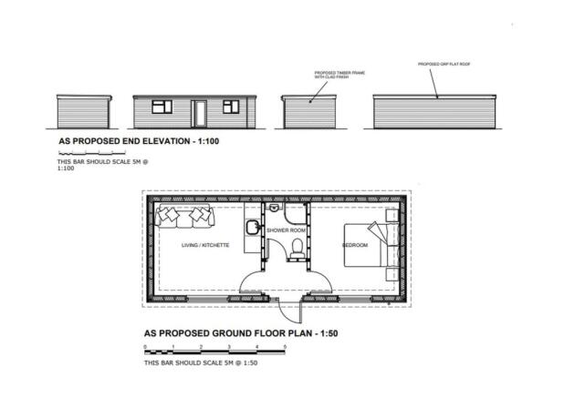
3 Bed House, Planning Permission, Dymock, GL18 1JA
£325,000
17 days ago • 93 m²
4 Bed House, Planning Permission, Dymock, GL18 1NP
£975,000
a month ago • 129 m²
3 Bed House, Planning Permission, Dymock, GL18 1HN
£1,650,000
4 months ago • 93 m²
6 Bed House, Planning Permission, Dymock, GL18 1RN
£1,450,000
5 months ago • 186 m²
3 Bed House, Planning Permission, Dymock, GL18 2EN
£300,000
3 views • 6 months ago • 93 m²
3 Bed House, Planning Permission, Dymock, GL18 1JA
£325,000
1 views • 6 months ago • 93 m²
5 Bed House, Planning Permission, Dymock, GL18 1ES
£595,000
3 views • 6 months ago • 178 m²
Sold STC
3 Bed House, Planning Permission, Dymock, GL18 1LS
£950,000
1 views • 8 months ago • 93 m²















































































































































































































































