6 Planning Deals near Egremont
Please note: we did not find any deals for your filters & location, so we found some nearby 👇
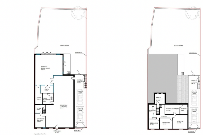
3 Bed House, Planning Permission, Egremont, CA22 2UH
£120,000
1 views • 4 months ago • 93 m²
3 Bed House, Refurb/BRRR, Egremont, CA22 2UH
£100,000
3 views • 4 months ago • 93 m²
2 Bed House, Refurb/BRRR, Egremont, CA22 2UH
£80,000
5 views • 4 months ago • 68 m²
Sold STC
3 Bed House, Planning Permission, Whitehaven, CA28 9TN
£120,000
1 views • 6 months ago • 93 m²
4 Bed House, Planning Permission, Whitehaven, CA28 9UR
£795,000
7 months ago • 129 m²
Sold STC
3 Bed Bungalow, Refurb/BRRR, Egremont, CA22 2PD
£475,000
10 months ago • 126 m²











































































































