5 Property Deals in DA13 0SB
Cashflow: £77/mo
Sold STC
3 Bed House, Refurb/BRRR, Gravesend, DA13 0SB
£325,000
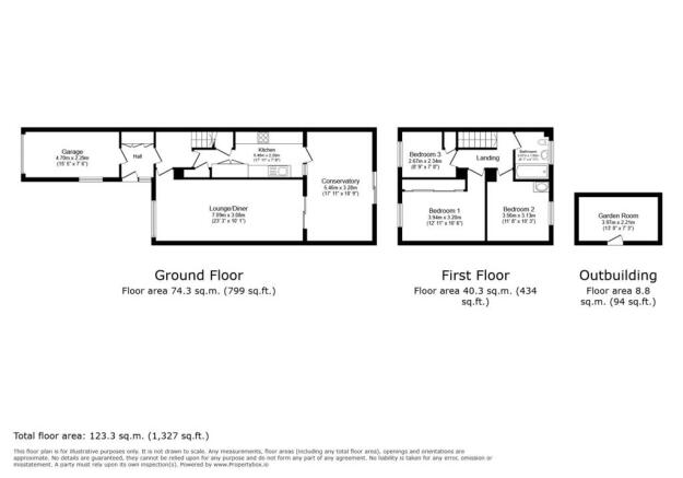
1 views • 11 days ago • 104 m²
3 Bed House, Single Let, Gravesend, DA13 0SB
£375,000
3 views • 6 months ago • 93 m²
3 Bed House, Single Let, Gravesend, DA13 0SB
£385,000
a month ago • 93 m²
3 Bed House, Single Let, Gravesend, DA13 0SB
£385,000
18 days ago • 93 m²
3 Bed House, Single Let, Gravesend, DA13 0SB
£385,000
15 days ago • 93 m²





































































